
點擊數:12582022-06-23 09:36:01 來源: 重慶實驗臺_重慶通風柜_重慶實驗室家具_重慶哥爾摩工程技術有限公司
實驗室的兩種通風方式:局部通風與全室通風
(一)局部通風:
局部通風是有害物質產生后就近排出,能以較少的風量排走大量的有害物質,能量省且效果好,能夠改善現有的實驗室條件,經濟且可行。
包括:通風柜通風、桌面式通風柜通風、生物安全柜通風、原子吸收罩通風、萬向排氣罩通風、不銹鋼排氣罩通風、排風試劑柜通風、排風藥品柜及其他實驗室排風的儀器設備通風
(二)全室通風:
對整個房間進行通風換氣,用送入室內的新鮮空氣將房間里的有害氣體濃度稀釋到衛生標準的允許范圍之內,同時,將室內污染的空氣直接或經過凈化處理后排放至室外大氣中。
包括:自然通風、機械通風
※常用于室內不設通風柜而且又需排出有害物質的房間。
實驗室通風系統一般由哪些部分組成
實驗室通風系統一般由通風設備、通風管道、消聲器、風機、控制系統組成。
1. 通風設備:
實驗室常用通風設備主要有:排毒柜、原子吸收罩、萬向排氣罩、桌面式通風罩等。
(1)排毒柜是安全處理有害、有害氣體或蒸汽的通風設備,作用:用來捕捉、密封和轉移污染物以及有害氣體,放置其逃逸到實驗室內,這樣通過吸入工作區域的污染物,是操作者吸入接觸的污染物最小化。排毒柜內的氣流是通過排風機將實驗室內的空氣吸進排毒柜,將排毒柜內污染的氣體稀釋并通過通風系統排到戶外后,可以達到低濃度擴散。
(2)萬向抽氣罩是進行局部通風的首選,安裝簡單、定位靈活。通風性能良好,能有效保護實驗室工作人員的人身安全,適用于液相色譜、氣相色譜或廢氣量不大且沒有高溫的實驗。
(3)原子吸收罩主要適用于原子吸收儀等涉及高溫且需要局部通風的大型精密儀器,要求定位安裝,也是整體實驗室規劃中必須考慮的因素之一。
(4)桌面通風罩主要適用于有機化學或需要長時間蒸餾的實驗室,在解決這類實驗室的整體通風要求中,它是必不可少的裝備之一。
2.通風管道:
對于一般的普通建筑,若室內排出的氣體沒有腐蝕性,通風管道可以采用鍍鋅鋼板,對于產生有腐蝕性氣體的實驗室,風管應采用耐腐蝕材料的PVC風管或玻璃鋼風管。在一般的實驗室通風工程,室內大多采用PVC風管、室外采用玻璃鋼風管。對于室內層高不足的實驗室或采用大型風管的實驗室,一般采用矩形風管,以便與現場空間匹配,在滿足風管要求的前提下,盡量減小風管占用空間。圓形風管采用插件連接,矩形風管采用法蘭方式連接,根據實際情況也可采用插件方式連接。
3.風機:
風機主要有軸流風機、斜流風機、離心風機。軸流風機、斜流風機適用于風壓小、管路短的通風系統,如,直接排至窗外或墻外的通風系統,簡稱:直排;玻璃鋼離心風機適用于管路長的通風系統,如,通過風管井或外墻接管排至屋頂,簡稱:屋頂排放。風機的材質:一般分為玻璃鋼、PP、PVC等。分估計的型號根據風量和風壓選擇。
4.通風控制系統:
通風控制系統可根據不同的情況采用不同的控制方式,如,單臺通風設備定風量通風控制系統、多臺通風設備變頻控制系統、多臺通風設備變頻+變風量通風控制系統。
實驗室通風系統規劃設計應該考慮的六大要素
1.安全
安全要素能夠保證實驗室內操作人員安全,以及保證實驗室周邊環境安全。各國關于實驗室安全都有較為細致的標準,而安全也是實驗室最為重要的目的之一。
為了保證實驗室內操作人員安全,我們需要對各種實驗室設備的氣流準確控制,例如,常用的通風柜、生物安全柜、萬向排風罩以及實驗動物設備當中的動物籠架等,其控制目的是保證明驗當中產生的有毒有害氣體不會溢出而危及人員安全。關于實驗室周邊環境安全的保證,則通常是經過保證實驗室的負壓來完成的。
2.壓力控制
通常的生物化學實驗室都要求保證實驗室負壓,防止實驗室產生的毒害氣體流入臨近的辦公區域,形成穿插污染。
3.節能
在能源問題越發慌張的今天,節能曾經成了實驗室管理者十分關懷的一個內容。通常的商用建筑物,為了節約能耗,采用的僅僅是15%的新風,而且建筑物是每周5天,每天10小時運作。而關于實驗室,采用的常常是100%全新風,每周7天,每天24小時運作,因而能耗宏大,必需在保證平安的前提下,盡量降低能耗。
4.溫馨
保證實驗室適宜并且穩定的溫濕度,氣流穩定無異味,為實驗室的工作人員提供一個溫馨的工作環境,以進步工作效率。
5.易維護
過于復雜的系統,常常需求定期維護,維護程序復雜并且費用高。所以一個良好的控制系統應該盡量簡單牢靠,維護簡單或者不需定期維護。
6.便當日后的改造或擴建
控制系統的設計應該盡量思索日后的改造和擴建。使得通風柜等設備的更新、移位、增加,實驗室壓力極性的變換等盡量簡單。
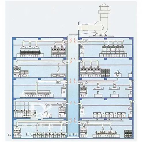
附:部分實驗室通風系統設計案例
案例一:
案例二:
案例三:
案例四:
案例五: